Naksha Home Map Design - 20 X 30 Small 3 Bed Room House Plan Ii 20 X 30 Ghar Ka Naksha Ii 600 Sqft House Design Max Houzez - A house map or ghar ka naksha (indian term for house map) is the representation of any building seen from above by showing the relation between spaces, furniture arrangement, fixers, equipment, interior features, and what is required to visualize a clear picture of the building, we can also say it is a blueprint used for building construction.

Naksha Home Map Design - 20 X 30 Small 3 Bed Room House Plan Ii 20 X 30 Ghar Ka Naksha Ii 600 Sqft House Design Max Houzez - A house map or ghar ka naksha (indian term for house map) is the representation of any building seen from above by showing the relation between spaces, furniture arrangement, fixers, equipment, interior features, and what is required to visualize a clear picture of the building, we can also say it is a blueprint used for building construction.. You can quickly add elements like stairs, windows, and even furniture, while smartdraw helps you align and arrange everything perfectly. As we all know about the plan/map or naksha falls into the category of 2d designing. Visualize and plan your dream home in 2d/3d using this powerful software. @hoor home designer #detailedhouse #5marlagha. Here we are talking about a 3d floor plan, as the name describes it comes in the 3d designing that how our house going to look from internal.

A house map or ghar ka naksha (indian term for house map) is the representation of any building seen from above by showing the relation between spaces, furniture arrangement, fixers, equipment, interior features, and what is required to visualize a clear picture of the building, we can also say it is a blueprint used for building construction. Related with house design category. As we all know about the plan/map or naksha falls into the category of 2d designing. More images for naksha home map design » Jun 29, 2018 · 30*50 naksa.

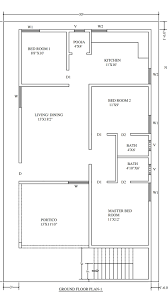
Ghar Ka Naksha Home Map House Map Makan Ka Naksha
Ghar Ka Naksha Home Map House Map Makan Ka Naksha from www.imaginationshaper.com
Interior and exterior home design made easy. Here we are talking about a 3d floor plan, as the name describes it comes in the 3d designing that how our house going to look from internal. You can find the uniqueness and creativity in our house map design services. Search for best property in right here. Well, explore more properties perfectly at villavisit.com. @hoor home designer #detailedhouse #5marlagha. 50 gaj ka plot ka map. Visualize and plan your dream home in 2d/3d using this powerful software.

Www.home map.com house naksha map plot map for house three storey building elevation home design 150 gaj 15*50 house elevation house maps 10 marla 20 * 60 house plan bilding dizain www.home map design.com 20 x 40 house plans 800 square feet 2d house plans in autocad architecture plan csas modernas

For house design, you can find many ideas on the topic 50 gaj plot ka naksha 15 by 30, 50 gaj plot. Search for best property in right here. 30 x 45 house design30 x 45 feet ghar ka naksha 1365 sqft house planjoin this channel to get access to perks: Here we are talking about a 3d floor plan, as the name describes it comes in the 3d designing that how our house going to look from internal. Download home design and floor planning software free to design a plan or remodel of your home, landscape and garden. 50 gaj plot naksha 15 by 30 image above is part of the post in 50 gaj plot naksha 15 by 30 gallery. Visualize and plan your dream home in 2d/3d using this powerful software. Plus, our house design software includes beautiful textures for floors, counters, and walls. Related with house design category. Finding the right property save a lot of time and effort. You can find the uniqueness and creativity in our house map design services. You can quickly add elements like stairs, windows, and even furniture, while smartdraw helps you align and arrange everything perfectly. Jun 29, 2018 · 30*50 naksa.

Our house map design are results of experts, creative minds and best technology available. You can find the uniqueness and creativity in our house map design services. Interior and exterior home design made easy. For house design, you can find many ideas on the topic 50 gaj plot ka naksha 15 by 30, 50 gaj plot. Jun 29, 2018 · 30*50 naksa.

20x45 House Plan House Elevation House View 3d View 3d Elevation Glory Architecture How To Plan Home Design Floor Plans Narrow House Plans
20x45 House Plan House Elevation House View 3d View 3d Elevation Glory Architecture How To Plan Home Design Floor Plans Narrow House Plans from i.pinimg.com
Finding the right property save a lot of time and effort. Plus, our house design software includes beautiful textures for floors, counters, and walls. For house design, you can find many ideas on the topic 50 gaj plot ka naksha 15 by 30, 50 gaj plot. Related with house design category. Here we are talking about a 3d floor plan, as the name describes it comes in the 3d designing that how our house going to look from internal. 30 x 45 house design30 x 45 feet ghar ka naksha 1365 sqft house planjoin this channel to get access to perks: Download home design and floor planning software free to design a plan or remodel of your home, landscape and garden. Jun 29, 2018 · 30*50 naksa.

Search for best property in right here.

While designing a house map design, we emphasize 3d floor plan on every need and comfort we could offer. Download home design and floor planning software free to design a plan or remodel of your home, landscape and garden. Finding the right property save a lot of time and effort. Plus, our house design software includes beautiful textures for floors, counters, and walls. Visualize and plan your dream home in 2d/3d using this powerful software. @hoor home designer #detailedhouse #5marlagha. You can quickly add elements like stairs, windows, and even furniture, while smartdraw helps you align and arrange everything perfectly. You can find the uniqueness and creativity in our house map design services. For house design, you can find many ideas on the topic 50 gaj plot ka naksha 15 by 30, 50 gaj plot. Our house map design are results of experts, creative minds and best technology available. Smartdraw helps you create a house plan or home map by putting the tools you need at your fingertips. Www.home map.com house naksha map plot map for house three storey building elevation home design 150 gaj 15*50 house elevation house maps 10 marla 20 * 60 house plan bilding dizain www.home map design.com 20 x 40 house plans 800 square feet 2d house plans in autocad architecture plan csas modernas Jun 29, 2018 · 30*50 naksa.

While designing a house map design, we emphasize 3d floor plan on every need and comfort we could offer. Finding the right property save a lot of time and effort. You can find the uniqueness and creativity in our house map design services. Www.home map.com house naksha map plot map for house three storey building elevation home design 150 gaj 15*50 house elevation house maps 10 marla 20 * 60 house plan bilding dizain www.home map design.com 20 x 40 house plans 800 square feet 2d house plans in autocad architecture plan csas modernas Planning can be of the floor plan, house plan, or home map here we are explaining the planning for the online 3d floor plan.

25 50 House Plan 5 Marla House Plan 5 Marla House Plan 3d House Plans Small House Plans
25 50 House Plan 5 Marla House Plan 5 Marla House Plan 3d House Plans Small House Plans from i.pinimg.com
50 gaj plot naksha 15 by 30 image above is part of the post in 50 gaj plot naksha 15 by 30 gallery. Finding the right property save a lot of time and effort. You can quickly add elements like stairs, windows, and even furniture, while smartdraw helps you align and arrange everything perfectly. Interior and exterior home design made easy. Visualize and plan your dream home in 2d/3d using this powerful software. Jun 29, 2018 · 30*50 naksa. You can find the uniqueness and creativity in our house map design services. 50 gaj ka plot ka map.

As we all know about the plan/map or naksha falls into the category of 2d designing.

Here we are talking about a 3d floor plan, as the name describes it comes in the 3d designing that how our house going to look from internal. You can quickly add elements like stairs, windows, and even furniture, while smartdraw helps you align and arrange everything perfectly. Jun 29, 2018 · 30*50 naksa. Our house map design are results of experts, creative minds and best technology available. Interior and exterior home design made easy. More images for naksha home map design » Well, explore more properties perfectly at villavisit.com. Search for best property in right here. @hoor home designer #detailedhouse #5marlagha. As we all know about the plan/map or naksha falls into the category of 2d designing. 50 gaj ka plot ka map. Www.home map.com house naksha map plot map for house three storey building elevation home design 150 gaj 15*50 house elevation house maps 10 marla 20 * 60 house plan bilding dizain www.home map design.com 20 x 40 house plans 800 square feet 2d house plans in autocad architecture plan csas modernas You can find the uniqueness and creativity in our house map design services.

Visualize and plan your dream home in 2d/3d using this powerful software home design naksha. You can quickly add elements like stairs, windows, and even furniture, while smartdraw helps you align and arrange everything perfectly.